Υπερπολυτελής διώροφη βίλα 180 τ.μ με ιδιωτική θερμαινόμενη πισίνα, χαμάμ και Μεσογειακό κήπο - Έως 14 άτομα.
Παρακαλούμε σημειώστε ότι η θέρμανση της πισίνας λειτουργεί κανονικά καθ’ όλη τη διάρκεια του έτους, με εξαίρεση το διάστημα από 1/11 έως 15/3, λόγω της χειμερινής περιόδου λειτουργίας.
Η βίλα City Cottage είναι μια πολυτελής βίλα 5 αστέρων, η οποία αποτελείται από δύο ορόφους: Το ισόγειο (Garden Cellar) και τον πρώτο όροφο (Greenhouse). Eίναι ιδανική επιλογή για όσους επιθυμούν να ζήσουν σε ένα παραδοσιακό γραφικό σπίτι με όλες τις πολυτελείς ανέσεις του 21ου αιώνα. Οι επισκέπτες μπορούν να απολαύσουν τον πλούσιο ιδιωτικό κήπο της κατοικίας με την ιδιωτική θερμαινόμενη πισίνα, η οποία προσφέρει θεραπευτικό μασάζ και υδροθεραπεία με ζεστό νερό, καθώς και το χαμάμ στο ισόγειο.
Όλες οι βίλες των Kalamata Mediterranean Suites & Villas διαθέτουν Σύγχρονα Κεντρικά Σύστηματα Θέρμανσης και Ψύξης των χώρων με χρήση Αντλιών Θερμότητας και Fan Coils.
Η θερμοκρασία εντός των βιλών είναι προεπιλεγμένα ρυθμισμένη στους 22oC καθ' όλο τον χειμώνα και στους 26oC καθ' όλο το καλοκαίρι, προκειμένου να επιτυγχάνεται ιδανική θερμική άνεση για τους επισκέπτες μας ολόκληρο το έτος.
Πρωινό στη βίλα σας: Καθημερινά μπορείτε προαιρετικά να επιλέξετε πρωινό, το οποίο παραδίδεται απευθείας στη βίλα, σε προεπιλεγμένο χρονικό διάστημα 07:30–11:00. Μπορείτε να δείτε αναλυτικά το μενού εδώ.
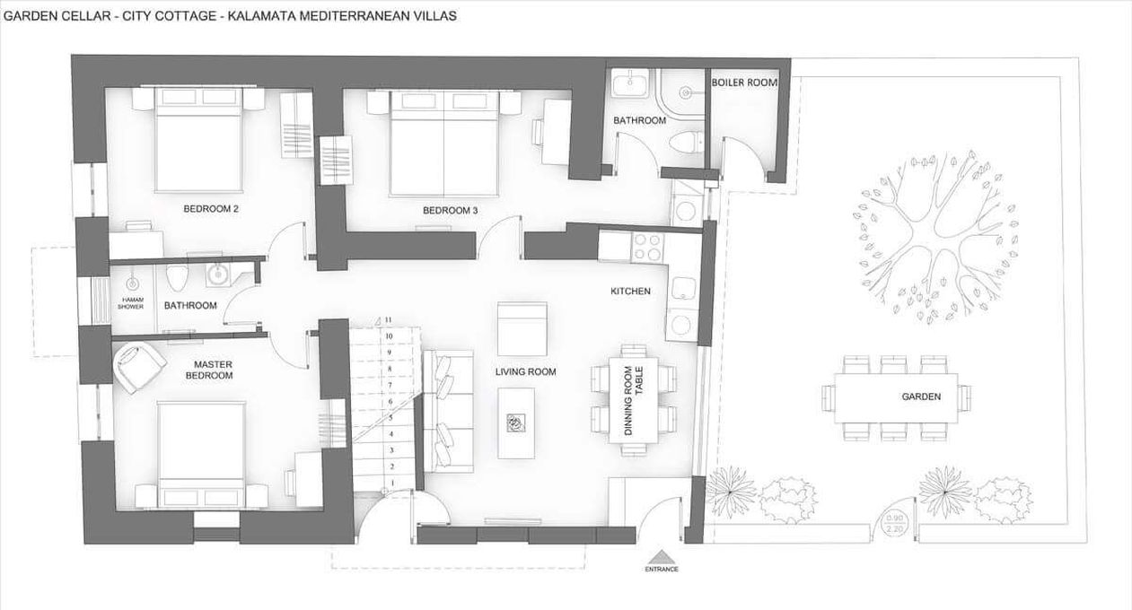
Το ισόγειο της βίλας (Garden Cellar) είναι εμπνευσμένο από την αρχική χρήση του χώρου ως κελάρι, προσφέροντας τη ζεστασιά του αυθεντικού χώρου, με τη χαμηλή του οροφή. Διαθέτει τρία υπνοδωμάτια, ένα υπνοδωμάτιο master με μεγάλο υπέρδιπλο κρεβάτι (Queen Size 1,60x2,00), ιδιωτικό μπάνιο και χαμάμ, ένα υπνοδωμάτιο με μεγάλο υπέρδιπλο κρεβάτι (Queen Size 1,60x2,00), ένα υπνοδωμάτιο με δύο ημίδιπλα κρεβάτια (Twin Size 1,00x2,00) και ένα επιπλέον μπάνιο με ευρύχωρη ντουζιέρα.
Η κουζίνα, η τραπεζαρία και το καθιστικό της βίλας αποτελούν ενιαίο χώρο. Το σαλόνι διαθέτει ένα μεγάλο καναπέ κρεβάτι και smart τηλεόραση επίπεδης οθόνης. Η κουζίνα διαθέτει μια μεγάλη τραπεζαρία 8 ατόμων και είναι πλήρως εξοπλισμένη με σύγχρονες συσκευές κορυφαίας ποιότητας, πλυντήριο πιάτων, ψυγείο, φούρνο και καφετιέρα .
Το ισόγειο έχει άμεση πρόσβαση στον ιδιωτικό Μεσογειακό κήπο με την ιδιωτική θερμαινόμενη πισίνα με μέγιστο βάθος 1,30 m, μήκος 4,5m & πλάτος 3,5m, η οποία έχει σταθερή θερμοκρασία όλο το χρόνο στους 28 oC ανεξάρτητα από τις καιρικές συνθήκες που επικρατούν στο περιβάλλον.
Η ειδικά διαμορφωμένη θερμαινόμενη πισίνα προσφέρει θεραπευτικό μασάζ και υδροθεραπεία με ζεστό νερό για έξτρα ευεξία και χαλάρωση. Ο κήπος της βίλας είναι εξοπλισμένος με ένα μεγάλο τραπέζι με άνετες καρέκλες και ένα υπαίθριο ντους, ενώ περιβάλλεται από δύο λεμονιές, δύο πορτοκαλιές, μία μανταρινιά, μία ροδιά, όλα τα αρωματικά φυτά του Ταϋγέτου, καθώς και δύο γωνίες από κάκτους της Μεσσηνιακής γης.
Ο πρώτος όροφος της βίλας (Greenhouse) έχει χαρακτήρα που περιστρέφεται γύρω από τα φυτά, το πράσινο και τη φύση, εμπνευσμένο από τις πορτοκαλιές και τις λεμονιές της περιοχής. Συνδέεται με το ισόγειο με εσωτερική σκάλα και διαθέτει μια ειδικά ηχομονωμένη πόρτα για να παρέχει ιδιωτικότητα και άνεση στους κατοίκους. Διαθέτει δύο υπνοδωμάτια με ένα μεγάλο υπέρδιπλο κρεβάτι (Queen Size 1,60x2,00) το καθένα και ένα μπάνιο με ευρύχωρη ντουζιέρα.
Το σαλόνι με την ιδιαίτερη αισθητική, διαθέτει ένα μεγάλο γωνιακό καναπέ κρεβάτι και smart τηλεόραση επίπεδης οθόνης. Η κουζίνα διαθέτει μια τραπεζαρία 6 ατόμων και είναι πλήρως εξοπλισμένη με σύγχρονες συσκευές κορυφαίας ποιότητας, πλυντήριο πιάτων, ψυγείο, φούρνο και καφετιέρα . Ο πρώτος όροφος διαθέτει μια ήσυχη βεράντα, με τραπέζι και καρέκλες για τις στιγμές χαλάρωσης.
Όλα τα υπνοδωμάτια διαθέτουν μοντέρνα γραφεία με καρέκλες και παρέχεται δωρεάν πρόσβαση σε Wi-Fi Internet με πολύ υψηλές ταχύτητες που φθάνουν τα 100mbps.
Η βίλα βρίσκεται σε μια από τις ομορφότερες γειτονιές της Καλαμάτας με ήσυχες κατοικίες, σε κοντινή απόσταση από το κέντρο και την τοπική παραλία. Mε σεβασμό προς την τοπική αρχιτεκτονική, κομψά έπιπλα και διακόσμηση, παλιά ανακαινισμένα ξύλινα παράθυρα με διπλά ενεργειακά τζάμια και γενικότερα με όλες τις πολυτελείς ανέσεις του 21ου αιώνα προσφέρει μία ξεχωριστή εμπειρία διαμονής.
Η θέρμανση, η ψύξη και το ζεστό νερό χρήσης παρέχονται κατά 100% από ανανεώσιμες πηγές ενέργεια. Όλα τα κρεβάτια της βίλας διαθέτουν πολύ άνετα αμερικανικά στρώματα Simmons & Sealy, για μια ξεχωριστή εμπειρία ύπνου.
Το City Cottage είναι μέρος του Kalamata Mediterranean Suites & Villas. Το κατάλυμα έχει δηλωθεί στον Ελληνικό Οργανισμό Τουρισμού με αριθμό γνωστοποίησης 1051184.001.
ΠΑΡΟΧΕΣ
- Ιδιωτική θερμαινόμενη πισίνα
- Spa - Jacuzzi
- Χαμάμ
- Πρωινό (προαιρετικό, με επιπλέον χρέωση)
- Θέρμανση
- Κλιματισμός
- Wi-Fi
- Μπαλκόνι
- Ιδιωτικός κήπος
- Ιδιωτική είσοδος
- 2 Σαλόνια των 8 και 6 ατόμων
- 2 Τραπεζαρίες των 8 και 6 ατόμων
- Τραπεζαρία κήπου 8 ατόμων
- Γραφεία
- 3 πλήρη μπάνια
- Smart TV - Netflix Ready
- Mini-bar
- Τηλεόραση με επίπεδη οθόνη
- Προϊόντα περιποίησης
- Πιστολάκι για μαλλιά
- Παιδικό κάθισμα λεκάνης
- Σεντόνια
- Πετσέτες
- Σιδερώστρα
- Πλυντήριο
- Ντουλάπες
- Τοστιέρα
- Μαγειρικές εστίες
- Φούρνος
- Ψυγείο
- Πλυντήριο πιάτων
- Καφετιέρα φίλτρου
- Καφετιέρα Nespresso
- Φρυγανιέρα
- Βραστήρας
- Μαγειρικά σκεύη
- Πλήρη σερβίτσια
- Παιδικό κάθισμα φαγητού
- Παιδικό κρεβάτι - Παρκοκρέβατο





























































































